FreeCAD22 Reverse Engineering Geometrierückführung

Lorem ipsum dolor sit amet, consectetur adipiscing elit. Ut elit tellus, luctus nec ullamcorper mattis, pulvinar dapibus leo.

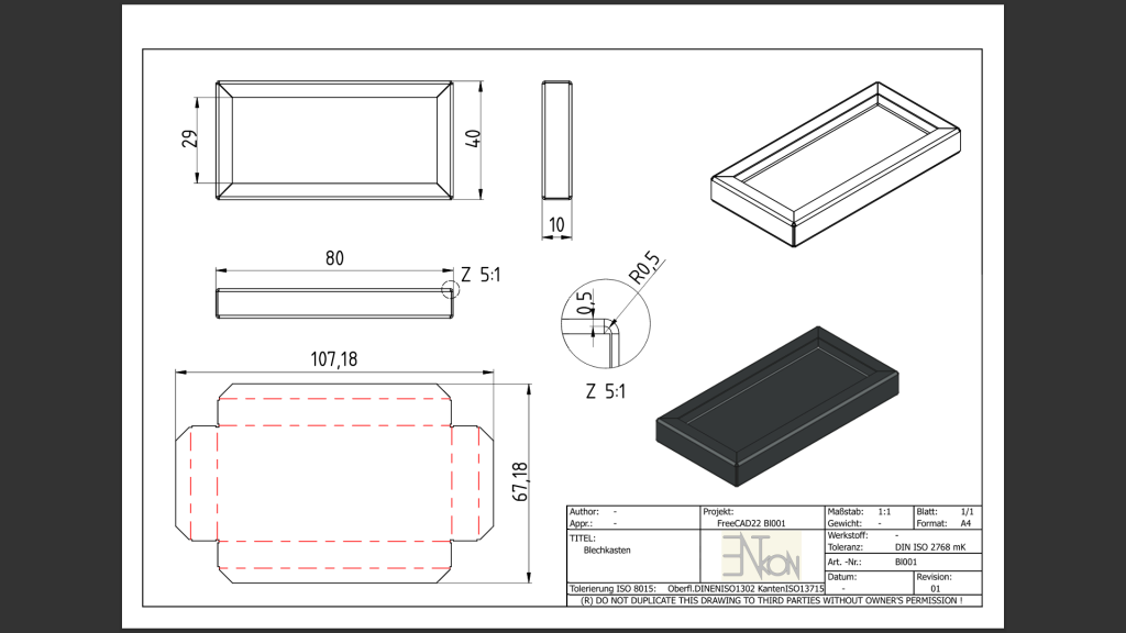
FreeCAD22 Bl001 Blechkasten Schachtel Blech Grundform hinzufügen Abwickeln